Les infos Essentielles
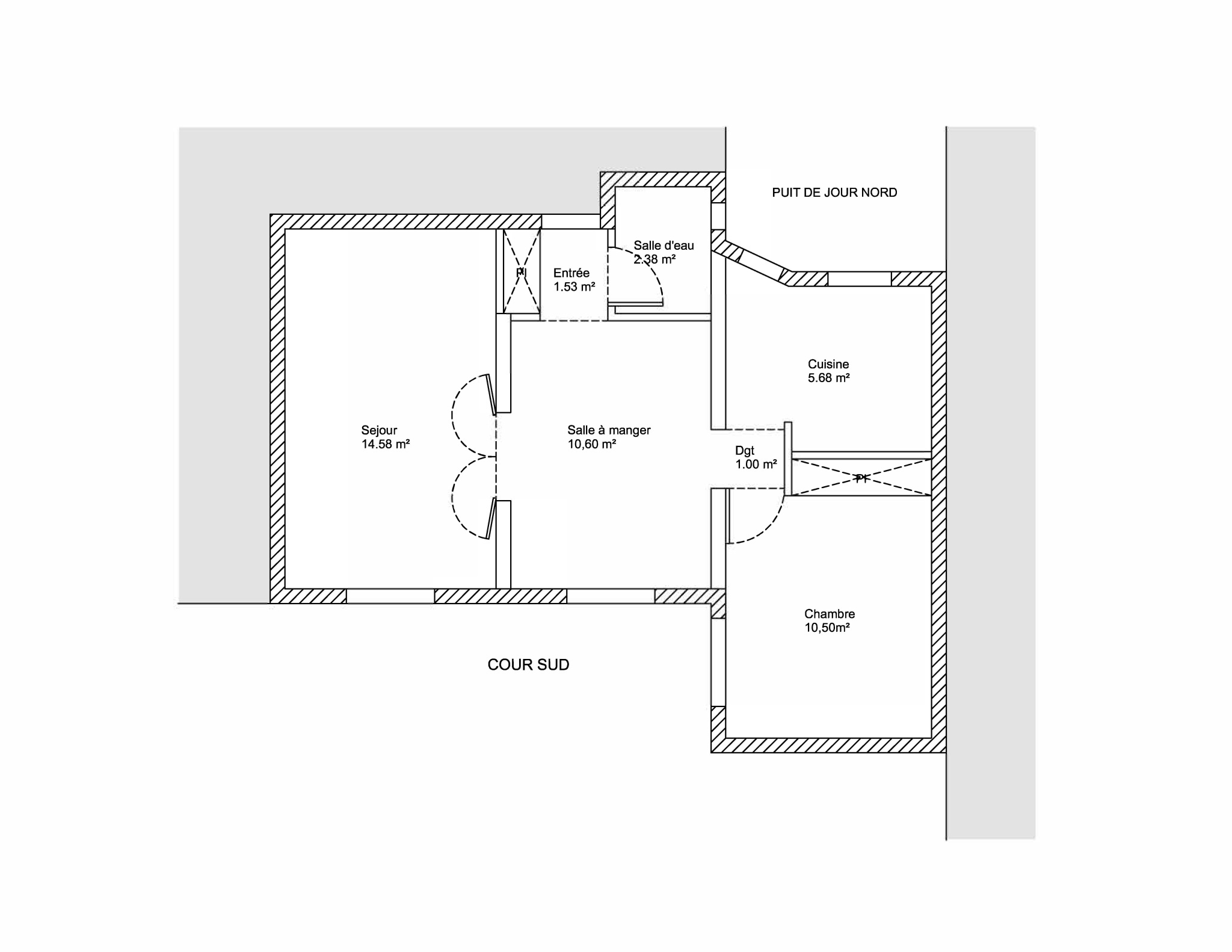
Au calme, rue de la Fidélité à Paris 10ème arrondissement, à proximité de la Faubourg Saint-Denis et à quelques minutes seulement de la gares de l’Est, cet appartement de 46 m² se situe dans un immeuble ancien très bien tenu.
Situé au 2ème étage avec un ascenseur, il séduit par sa lumière constante et son authenticité : parquet d’époque, moulures, cheminée, belle hauteur sous plafond.
La double réception de 25 m² offre un bel espace salon et une partie salle à manger . Le plan est parfait , sans perte de place et complété par une chambre, une cuisine séparée avec fenêtre et une salle d’eau avec fenêtre également.
Un bien rare, lumineux et plein de charme, idéal pour les amoureux de l’ancien souhaitant profiter d’un cadre paisible au cœur d’un quartier vivant et bien desservi.
Localisation Du bien
-
Commerces et santé
-
Loisirs
-
Ecoles
-
Transports
-
Pratique
Les infos Energetiques
Logement à consommation énergétique excessive : classe F
Montant estimé des dépenses annuelles d'énergie pour un usage standard est compris entre 1 400 € et 1 900 € . Prix moyens des énergies indexés sur les années 2021, 2022 et 2023 (abonnements compris).
10,30m² coté salle à manger et 14,58 m² coté salon
Douche et wc dans la même pièce
La base légale du traitement repose sur l’intérêt légitime de l'Agence / du Réseau.
Elles sont conservées jusqu'à demande de suppression et sont destinées à l'Agence / au Réseau.
Conformément à la loi « informatique et libertés », vous pouvez exercer votre droit d'accès aux données vous concernant et les faire rectifier en contactant l'Agence / le Réseau.
Si vous estimez, après avoir contacté l'Agence / le Réseau, que vos droits « Informatique et Libertés » ne sont pas respectés, vous pouvez adresser une réclamation à la CNIL.
Nous vous informons de l’existence de la liste d'opposition au démarchage téléphonique « Bloctel », sur laquelle vous pouvez vous inscrire ici : https://www.bloctel.gouv.fr
Dans le cadre de la protection des Données personnelles, nous vous invitons à ne pas inscrire de Données sensibles dans le champ de saisie libre
Ce site est protégé par reCAPTCHA, les Politiques de Confidentialité et les Conditions d'Utilisation de Google s'appliquent.
Détails des diagnostics énergétiques
Logement à consommation énergétique excessive : classe F
Montant estimé des dépenses annuelles d'énergie pour un usage standard est compris entre 1 400 € et 1 900 € . Prix moyens des énergies indexés sur les années 2021, 2022 et 2023 (abonnements compris).
60 m² lumineux ,traversant, 5ème étage, coup de cœur
