Les infos Essentielles
M° République, secteur Saint-Martin, rue René Boulanger (rue semi-piétonne), dans une copropriété de très bon standing du début du XIXème siècle, où règne une ambiance chaleureuse et accueillante grâce à un gardien attentif, nous vous proposons cet appartement de 4/5 pièces à la vente.
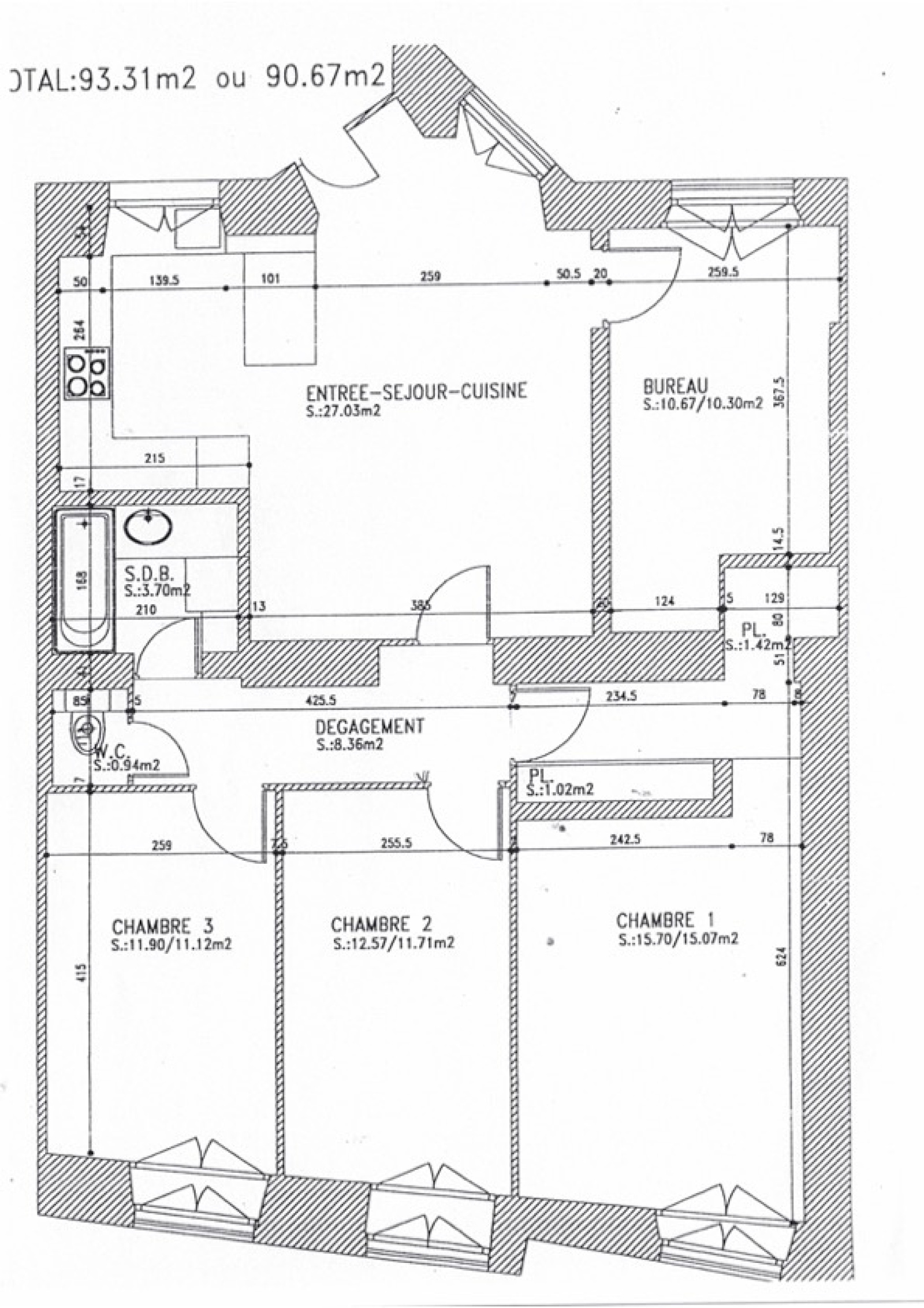
Avec ses 88,79 m² loi Carrez et presque 94 m² au sol, ce bien offre un espace de vie convivial et fonctionnel.
Il se compose d’une première pièce de vie de 26 m² avec poutres apparentes et une cuisine ouverte, aménagée et équipée, ainsi que d’une seconde pièce de vie de 11 m² (salle à manger, bureau ou future 4? chambre). Vous trouverez également trois chambres, dont une spacieuse de 18,04 m², et deux autres de 11 m² chacune. Une salle de bains et un WC séparé complètent ce cocon.
Avec une hauteur sous plafond de 2,40 mètres, l’atmosphère est cosy et chaleureuse. Le volume des pièces met en valeur le charme ancien des poutres.
Cet appartement vous séduira par son accessibilité facile et ses faibles charges, dues à l’absence d’ascenseur. En état habitable, il offre un immense potentiel pour vos projets de réaménagement.
Point fort pour un investissement : cet appartement bénéficie de la destination et de l’usage commercial (nous n’acceptons pas de condition pour du meublé de tourisme).
Si vous souhaitez le conserver en usage d’habitation, c’est également possible : une assemblée générale l’a autorisé en 2007.
Laissez-vous séduire par ce lieu de vie charmant, prêt à accueillir de nouveaux souvenirs et à devenir le théâtre de votre quotidien.
Les informations sur les risques auxquels ce bien est exposé sont disponibles sur le site Géorisques
Localisation Du bien
-
Commerces et santé
-
Loisirs
-
Ecoles
-
Transports
-
Pratique
Les infos Energetiques
Montant estimé des dépenses annuelles d'énergie de ce logement pour un usage standard est compris entre 860 € et 1 200 € . 2021 étant l'année de référence des prix de l'énergie utilisés pour établir cette estimation.
Détails des diagnostics énergétiques
Montant estimé des dépenses annuelles d'énergie de ce logement pour un usage standard est compris entre 860 € et 1 200 € . 2021 étant l'année de référence des prix de l'énergie utilisés pour établir cette estimation.
